Polipasto de grúa aérea de viga única de almacén
Modelo de producto:LD
Capacidad de elevación: 1-25t
Longitud del tramo: 7.5-31.5m
Altura de elevación: 6-30m
Velocidad de elevación: 0.3-8m/min
Velocidad de desplazamiento del polipasto: 20 m/min
Velocidad de desplazamiento de la grúa: 20 m/min
Clase obrera: A3,A4
Descripción
Polipasto de grúa aérea de viga única de almacén
Descripción del polipasto de grúa aérea de viga única de almacén
El polipasto de grúa aérea de viga única de almacén modelo LD se caracteriza por una estructura más razonable y acero de mayor resistencia como una grúa completa.
La grúa aérea de una sola viga es más típica cuando la capacidad de elevación es inferior a 20T.
Generalmente se usa junto con el polipasto eléctrico modelo CD1 modelo MD1 como un conjunto completo, es una grúa de trabajo liviano con una capacidad 0.5 ton ~ 32 ton.
Dispositivos de seguridad para grúas aéreas de una sola viga de almacén
Dispositivo de protección contra sobrecarga de peso.
Dispositivo limitador de altura de elevación.
Función de protección de baja tensión.
Función de protección de secuencia de fase.
Función de parada de emergencia.
Protector de lluvia para polipasto exterior, unidades motrices, cuadro eléctrico.
Indicador de advertencia: luces intermitentes y sonidos de advertencia.
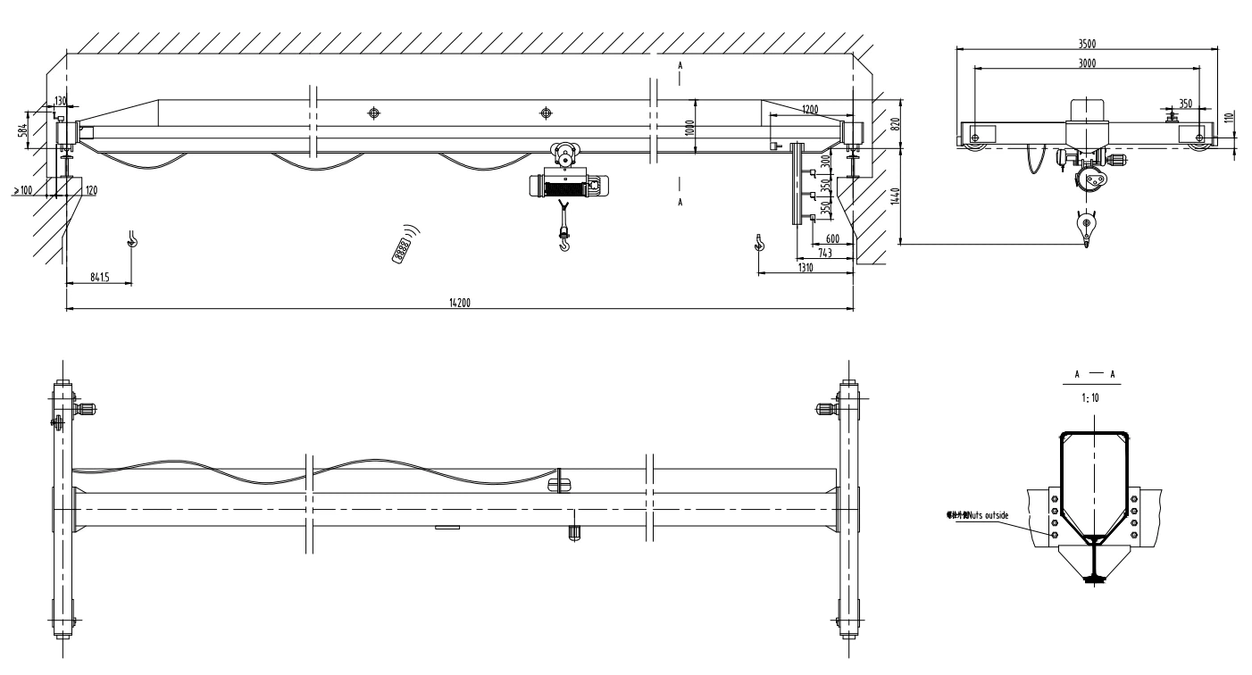
Grúa aérea de una sola viga para almacén DDibujo de diseño

ProductoParámetros
| N º de Modelo. | LD | Peso máximo de elevación | <> |
| Capacidad de carga | hasta 12,5 toneladas | Lapso | hasta 31,5 metros |
| Forma de viga principal | viga única | Escribe | Grúa viajera aérea eléctrica |
| Fuente de alimentación | 380~480V, 50~60Hz, 3 fases | Velocidad de elevación | 5/0.8 M/Min (VFD como opción) |
| Altura de elevación | hasta 30 metros | Control | Radio control remoto/colgante |
| Velocidad de desplazamiento del polipasto | 2~20 M/min (VFD) | Velocidad de viaje de la grúa | 3~30 M/min (VFD) |
| Clase de servicio | A5 (ISO) | Tiempo de espera | En 30 días |
| Documentos adjuntos | Manual de operación y mantenimiento, Diagrama de cableado | Paquete de transporte | Caja de madera, película impermeable |
| Instalación | Video tutorial, instalación y puesta en marcha del sitio | Capacidad de producción | 3000 juegos por año |
| Especificación | Taller de altura estándar/baja, montaje en techo | Origen | Henan, China |
ProductoPartes principales

Certificaciones

Embalaje y Entrega
100 por ciento de inspección de control de calidad antes del envío;
Todos los accesorios frangibles estarán protegidos por papeles de plástico y luego empaquetados en caja de madera;
Tiempo de entrega: estrictamente ejecutante basado en contrato;

¿Qué información debo proporcionar para obtener el precio?
Parámetros específicos como la capacidad de elevación, la altura de elevación, el alcance, el voltaje de la fuente de alimentación, el método de control, etc.
¿Se puede personalizar el producto?
Sí. somos fabricantes y tenemos muchos ingenieros experimentados, pueden diseñar productos de acuerdo con cus.
¿Cómo puede garantizar su calidad?
Antes de la entrega, todos los productos serán probados. También le invitamos cordialmente a venir a nuestra fábrica para su inspección.
¿Venden accesorios para grúas?
Sí, por supuesto, podemos proporcionar motores, reductores, frenos, ganchos, controles remotos, ruedas, rieles de grúa, testeros, barras colectoras, etc.
Etiqueta: polipasto de grúa aérea de viga única de almacén China, fabricantes, proveedores, personalizado, cotización, oferta, precio
Envíeconsulta
También podría gustarte










