Puente Grúa Con Carro
Modelo del producto;QDCapacidad de elevación: 5-450t
Luz:6m - 31.5m
Altura de elevación: 3m - 60m
Servicio de trabajo: A3-A6
Servicio personalizado: Proporcionar
Temperatura de trabajo: -25 a 40 grados
Descripción
Puente grúa con carro Introducción
Los puentes grúa birraíles generalmente se componen de tres partes principales: estructuras mecánicas, eléctricas y metálicas. La apariencia de la grúa puente de doble viga es como un puente de panel plano de un solo vano cuyos dos extremos se apoyan en dos rieles elevados paralelos y corren en traslación.
La parte mecánica de la grúa puente de doble viga se divide en tres mecanismos, a saber, el mecanismo de elevación, el mecanismo de funcionamiento del carro y el mecanismo de funcionamiento del carro.
El mecanismo de elevación se usa para levantar objetos verticalmente, el mecanismo de operación del carro se usa para transportar la carga para el movimiento lateral; el mecanismo de operación del carro se utiliza para mover verticalmente el carro de elevación y los objetos para lograr el propósito de manipular, cargar y descargar mercancías en un espacio tridimensional. .
Parte de estructura metálica: se compone de marco de puente y marco pequeño.
Parte eléctrica: está formada por los equipos eléctricos y las líneas eléctricas.
Estructura de puente grúa con carro
Armazón del puente: se compone de dos vigas principales y dos vigas finales, así como partes como plataformas para caminar y barandas. Hay dos formas estructurales: caja y cercha.
Mecanismo de funcionamiento del carro: se compone de motor eléctrico, freno, reductor, acoplamiento, eje de transmisión, caja de rodamientos angulares, ruedas y otras partes.
Carro de grúa puente de doble viga: se compone de un marco de carro, un mecanismo de elevación y un mecanismo de funcionamiento del carro.
El mecanismo de elevación está compuesto por motores eléctricos, frenos, ejes de transmisión, acoplamientos, reductores, tambores, poleas fijas y cables de acero y otros componentes. Freno simple y freno doble.
Cabina de grúa puente birraíl: el lugar donde trabaja el operador de la grúa. Hay equipo de control (mesa de enlace o controlador de leva), caja de protección de distribución, dispositivo de señal y equipo de iluminación en el interior. La grúa no puede ponerse en marcha hasta que la escotilla esté cerrada.
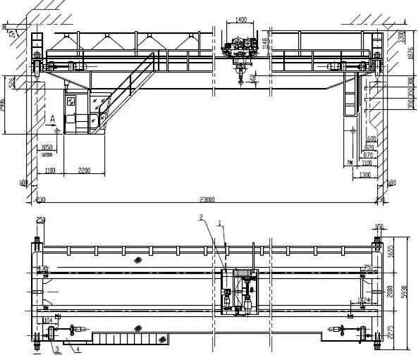
Puente Grúa con CarroDibujo


Grúa aérea con parámetros de carro
| No | Artículo | Datos | |||
| 1 | Capacidad de levantamiento | 5-350 tonelada | |||
| 2 | Altura de elevación | 1-20m | |||
| 3 | Lapso | 10.5-31.5m | |||
| 4 | Temperatura ambiente de trabajo | -25~40 grados | |||
| 5 | Velocidad | Izar | Principal | 0.84-9.5 m/min | |
| auxiliar | 5.22-12.6 m/min | ||||
| cangrejo | 5.8-38.4 m/min | ||||
| carretilla | 17.7-78 m/min | ||||
| 6 | sistema de trabajo | A5~A6 |
ProductoSistema de seguridad
Todas las grúas están equipadas con un dispositivo de protección contra sobrecargas, un amortiguador de materiales de poliuretano de larga duración de alta calidad, un interruptor de límite de desplazamiento de la grúa, una función de protección contra voltaje bajo, un sistema de parada de emergencia, etc.
Todas las operaciones están controladas por un sistema de control central con un excelente servicio posventa.
Todas las máquinas estarían garantizadas por un año a partir de la fecha de ejecución de la prueba.
Bajo cargo por mantenimiento continuo cuando vence la garantía.
Paquete y Entrega
Embalaje de contenedor estándar
Según los requisitos del cliente.
Tiempo de entrega enviado en 25 días después del pago
Etiqueta: puente grúa con carro China, fabricantes, proveedores, personalizado, cotización, oferta, precio
Envíeconsulta
También podría gustarte










